Rt-94, New Windsor, NY

$499,000

Previous Next

2.00

Acres

About Rt-94

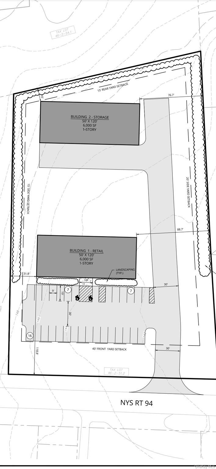
Two acres wide open canvas for Neighborhood Commercial Zone. Site plans in pics shows 1 possible layout. Great for retail mall or flex type spaces. Sewer, water, gas all available. All plans to require town approvals.

Features of Rt-94

MLS® # 927873
Price $499,000
Bathrooms 0.00
Acres 2.00
Taxes $2,536
Type Commercial Sale
Sub-Type Business
Status Active

Community Information

Address Rt-94
City New Windsor
County Orange County
State NY
Zip Code 12553
Adult 55+ Community No

Amenities

Utilities Electricity Available, Natural Gas Available, Phone Available, Sewer Available, Trash Collection Private, Water Available
Is Waterfront No
Has Pool No

Interior

Heating None
Cooling None
Has Basement No
Fireplace No

Exterior

Exterior Other

Additional Information

Date Listed October 23rd, 2025
Days on Market 4
Short Sale No
RE / Bank Owned No

Listing Details

OfficeKeller Williams Realty
Contact Info845-928-8000

Listing Map

Request a Showing

Provide a valid email address.
When would you like to view this property?